|
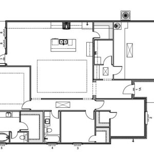
343,990 BASE PRICE |
1,758 SQ. FT. |
1
STORIES |
3 BED |
2 BATH |
2 GARAGE |
AVAILABLE IN:
Kings Landing, David Estates
Kings Landing, David Estates

